台州房地产网 > 台州二手房
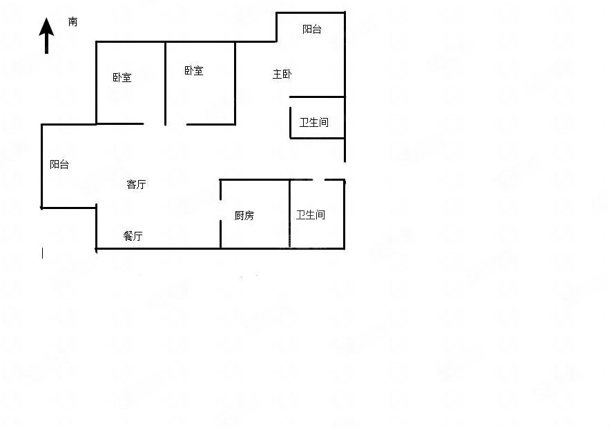
    锦江百货景元花园小高层3室2厅2卫139㎡
    浏览:人次 2022/6/11 10:45:29
  • 建筑面积:
  • 139㎡
  • 户型:3室2厅2卫
  • 房产类型:
  • 小高层
  • 朝向:南北
  • 总 层 次:
  • 6层
  • 层次:低层
  • 建造时间:
  • 待核查
  • 装修:毛坯
  • 土地性质:
  • 商品房,70年产权
  • 证件:满二年
  • 占地面积:
  • 待测量
  • 车库:待查待测
  • 所属小学:
  • 未知
  • 中学:未知
  • 方位:
  • 锦江百货
  • 地址:
  • 未登记
    配套设施

物业类型:普通住宅

    周边环境

暂无介绍

    详细描述

联系方式:房金眼房产经纪景元直营店徐聪,13736685755,1、交通很方便
业主很信任我,我能了解业主卖房新的动态。目前市场交易量平稳,政策已经基本稳定,是市场触底入手的好时候。请不要错过性价比高的好房。

(联系时请说明来自《台州房地产网》

    同区位房
    同价位房
    精彩推荐
关于我们 | 免责声明 | 联系我们 | 视频中心
Copyright © 台州房地产网 浙ICP备2024070870号-1 浙ICP备2024070870号-2 浙ICP备2025151442号-4 All Rights Reserved
技术支持 台州通联网络-台州网站建设-网页设计